1 Biotic Close, WEIR VIEWS VIC 3338
“Where dreams find their address -The Roof” The Roof Real…
$630,000
Sold
$700,000























The Roof Real Estate Melton proudly presents a luxury lifestyle awaits you here in a beautiful home at Weir Views on a big block of 529sqm Stylish houses have all needed for living, continued quality and high end specifications throughout are guaranteed to impress. This Stunning home open plan living zone ensures plenty of natural light and passive hot water solar elements that are enjoyed throughout the year.
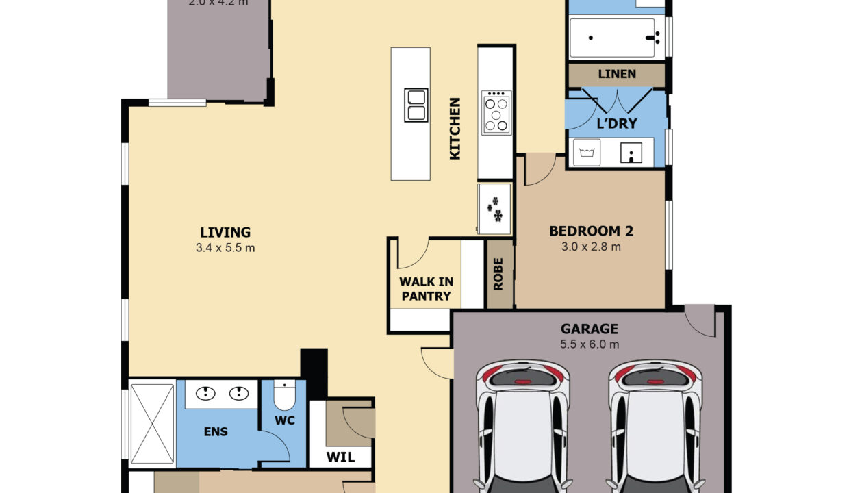
Welcome to this magnificent 4-bedroom, 2-bathroom residence, perfectly designed for modern family living. Situated on a generous block, this property offers an abundance of space both indoors and out, ideal for creating lasting memories. This designed four bedrooms, two bathrooms along with plenty of room to grow for families. house complete with low maintenance gardens.
This quality home is positioned in one of the most desirable new pockets of Weir Views, this wonderfully presented home has so much to offer to anyone looking for a quality home with ample upgrades. Within close proximity to all levels of schooling, parks, freeway access, Melton South & Opalia Shopping Centre, Melton South and Cobblebank Train Stations, you simply can’t go wrong with this prime location!
Astonish Features:…….
# Modern Façade with beautifully done landscaping with natural grass
# Massive Master bedroom suite with WIR
# Three other spacious size bedrooms with BIR
# Double vanity and Extended shower in Master bedroom
# LED Throughout the house
# Formal Separate living
# Kitchen with Decent upgrades
# Spacious Pantry
# 20mm kitchen island
# 900mm kitchen appliances
# Carpet flooring
# Sheer curtains in main living area
# Blinds in all the Bedrooms
# Evaporative Cooling
# Ducted Heating
# High Ceiling
# Colorbond Roof
# Concrete all around the house
# Alfresco
# Extra Lining Cupboards
# Massive side yard prefect for family get-together
# Massive backyard prefect for kids
# Artificial grass
# Extra parking
Close by facilities……..
Opalia Plaza shopping center – 2 minute drive
McDonalds – 1.5 minute drive
Anytime Fitness Gym – 3 minute drive
Dosa Hut, Okami, Cheesecake shop & Pizza shop – 3 minute drive
Weir Views Dental – 2 minute drive
Petrol station – 2 minutes drive
Ideal For: Large & growing families, professionals, investors. An opportunity like this is rare to come by and will not last long…….!
This pocket within Melton South’s Weir Views is hot, with McDonalds, the new Opalia Plaza, gyms, restaurants, and so much more already established, and with many new developments on the way, entering the property market in this area would be a very sound decision for any savvy homebuyer who holds high standards in looking for the very best in highly upgraded homes.
If you are looking to purchase this masterpiece call us at early convenience and book your private inspection.
Payal Arora on 0435 821 541 E: [email protected]
For a Due Diligence Checklist, please refer to the following link: http://www.consumer.vic.gov.au/duediligencechecklist.
DISCLAIMER: All dimensions provided are approximate. The information given is for general purposes only and does not constitute any representation by the vendor or agent.
Please refer to Contract of Sale and/or Lease documentation. All images subject to copyright.
* By enquiring on this property you agree to receive regular property updates and marketing communication from The Roof Real Estate. You may unsubscribe at any time.
“Where dreams find their address -The Roof” The Roof Real…
$630,000
Nest or Invest on Prime location in Melton South! The…